2 Bedroom House with Large Garden & Driveway

Area:
London SE9
Postcode:
SE9
Available:
01 Apr 2026
Min term:
12 months
Rent:
£1,850pcm

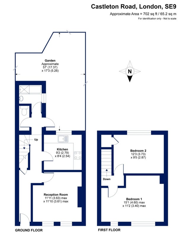
A well-presented 2 double bedroom family home on Castleton Road (SE9 4DA), with a large approx. 60ft rear garden and excellent transport links.

Key features
- £1,850 per calendar month
- Unfurnished
- White goods included: fridge freezer and integrated induction hob and oven
- Fully fitted kitchen
- Gas central heating (boiler only 2 years old)
- Double glazing
- Two double bedrooms including his & hers wardrobes in master bedroom
- Recently renovated upstairs with a stylish finish and staircase
- Large approx. 60ft south facing garden (lawnmower/garden tools included)
- Walking distance to shops and local amenities
- Woodland within approx. 5 minutes’ walk

Transport
- Around 15 minutes’ walk to Grove Park station
- 11 minutes by train to London Bridge from Grove Park (fast train)
- 29 minutes by train to Waterloo from Grove Park
- 18 minutes by train to Victoria from Bromley South

Local area highlights
- Bromley around 10 minutes drive (The Glades Shopping Centre)
- Easy access to Eltham, Beckenham, Chislehurst and Catford
- Bluewater and Lakeside within around 30–40 minutes (traffic dependent)

Ideal for: a couple or young family looking for a comfortable home with great links into Central London.

Holding Deposit: £426.92 (1 weeks rent)
Security Depsoit: £2,134.62 (5 weeks rent)
Minimum Term: 12 months

Enquiries: Message to arrange a viewing.

Contact the advertiser

live out landlord Verified User Last active: just now

In a hurry? Show interest and we will send the advertiser your profile

This user's ID has been verified


Location info

  • London SE9
  • SE9

Extra costs

Security deposit
£2,134.00

Amenities

Furnishings
Unfurnished
Parking
Yes
Garden/terrace
Yes
Disabled access
Living room
own

New tenant preferences

Smoking OK?
No
Pets OK?
No
Occupation
Professional  
References?
Yes

View on map

To EMAIL or PHONE the advertiser, please scroll up this page - there is a box entitled "Contact the advertiser". You can call or email from there.

Help topics

Report this ad

We have staff moderating our ads 7 days per week, to keep quality high. Please help us in our job and let us know if there is any problem with this ad, e.g.:

  • The photos are not of the room advertised
  • The description is misleading
  • The ad is generic rather than for a specific available flat
  • The advertiser is not a live out landlord